
Una cabaña minimalista en medio del bosque es casi un sueño. Todos tenemos una idea aproximada de lo que viene siendo la típica cabaña rústica para pasar un fin de semana. Los dueños de esta cabaña situada en Brecht decidieron restaurar y ampliar la suya, consiguiendo un paraíso minimalista en mitad de la naturaleza.
Lo más asombroso es que rompieron todos los cánones sobre cabañas que conocíamos hasta el momento.
Los arquitectos DMVA encontraron esta cabaña, a tan solo quince minutos de Brujas, perdida entre la vegetación y decidieron restaurarla por completo, manteniendo la estructura original. Veamos cómo es esta casita de ensueño por dentro y por fuera:
Conociendo la cabaña minimalista
Un camino de adoquines nos guía hacia la casa perdida entre la vegetación, un paraíso minimalista de lo más acogedor.
Sus alrededores
En el exterior, un lago y un frondoso bosque que convierten la zona en un miniparaíso. La cabaña minimalista, engalanada de modernidad, se instala en el corazón de este tranquilo páramo natural, acaparando toda la atención de la parcela.
Terraza acogedora
Este rincón es perfecto para las noches de verano, para disfrutar con los amigos o la familia de una estupenda barbacoa en mitad de la naturaleza.
Los actuales residentes, ampliaron la casita por uno de sus costados para ganar unos metros de superficie, y ahora dispone de una sala acristalada que hace las veces de estudio, abierto a la naturaleza.
El interior de la cabaña
La pequeña cabaña minimalista en mitad del bosque resulta que, por dentro, es un hogar minimalista: sus grandes ventanales y el mobiliario con el que está decorada rayan el lujo y el confort. La luz entra a raudales por toda la casa, en la que se han instalado espacios abiertos como terrazas exteriores con bancos y hornos de leña. Mezcla elementos modernos con una esencia puramente rústica.
Un lugar manso y apacible, cuyo interior está lleno de vida, con elementos decorativos tales como una mesa de Pergiorgio y unas sillas de Jean Marie Massaud en el estudio. En el otro extremo se hallan los sofás Tufty de Patricia Urquiola, y una estufa de leña Stûy para asegurar una temperatura agradable.
La cabaña minimalista posee 261 metros cuadrados que dan cabida a una cocina abierta, un comedor, un salón, dos baños, un dormitorio en la planta superior, dos terrazas y una sala solo para el almacenamiento. Y a falta de espacio, en el exterior también disponen de una estructura de acero para el almacenamiento.
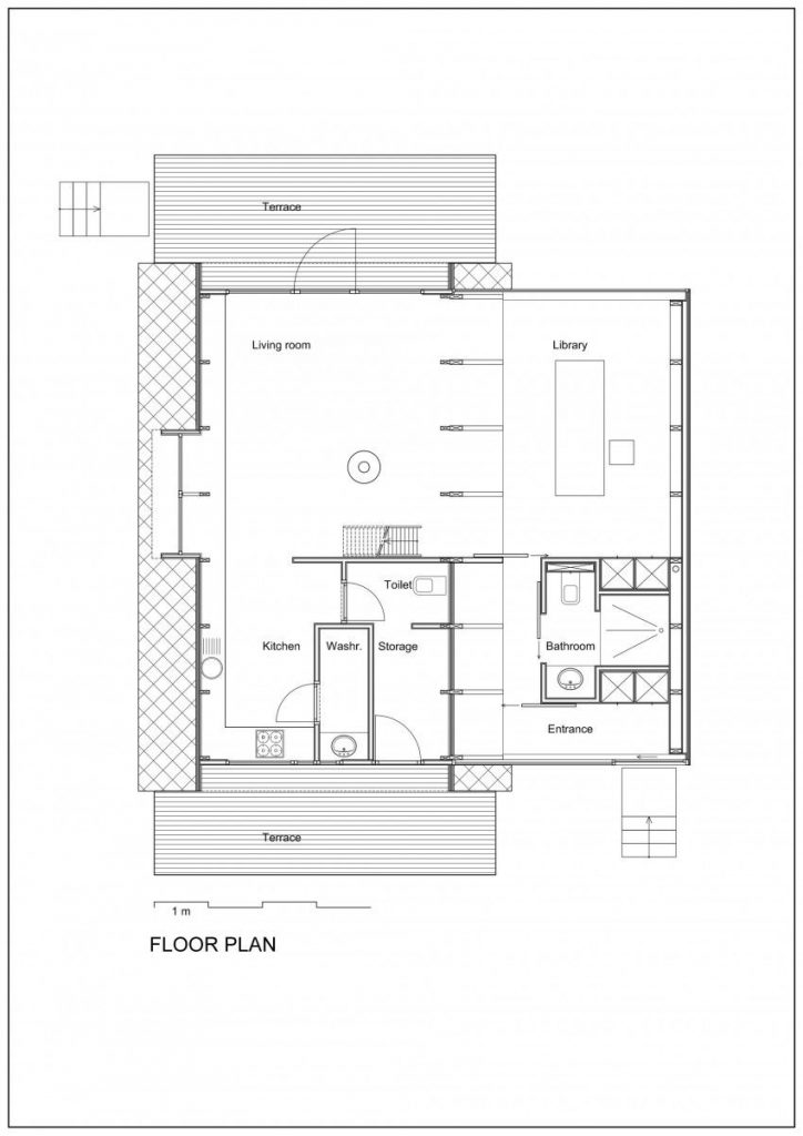
Los planos de la cabaña

Plano de la planta baja. Como veis, lo que parece pequeño por dentro es increíblemente grande por fuera, efecto que se consigue gracias a la gran cantidad de luz que recibe la casa a través de los grandes ventanales y a la decoración minimalista.
Fuente: homedsgn

Digital Marketing fanatic with over 15 years in IT consulting
Fundador de la empresa Ameizin.es, dedicada al content digital(SEO/SEM)
Propietario y fundador de www.casaslujo.es
Propietario de los blogs www.casasincreibles.com y www.lanubedealgodon.com
Experto en SEO/SEM y comunicación en redes sociales, propietario de grupos con mas de 2.550.000 usuarios.
No me interesa un proyecto por el factor económico, mi ambición es trabajar en proyectos donde pueda explotar mi skill I+D









